Please enable JavaScript to view this site.

MESYS Berechnungssoftware

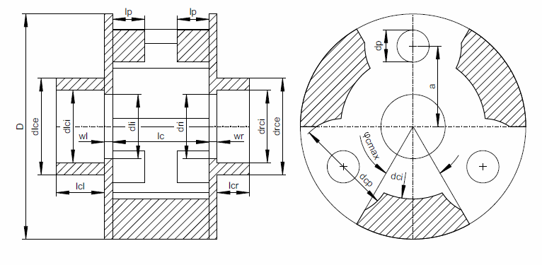
Ein parametrischer kreisförmiger Planetenträger kann entweder einseitig oder zweiseitig definiert werden. Die Geometrie ist in der folgenden Abbildung dargestellt:

carrier-cylindrical